用亮眼成绩,为一路热销的口碑热盘交上一份满意答卷。
京熙润府凭借硬核产品力,一举夺得2025年1-9月房山商品住宅销售套数TOP1,以及2025年3季度房山商品住宅销售套数、面积、金额三料销冠,成为区域当之无愧的劲销热盘。

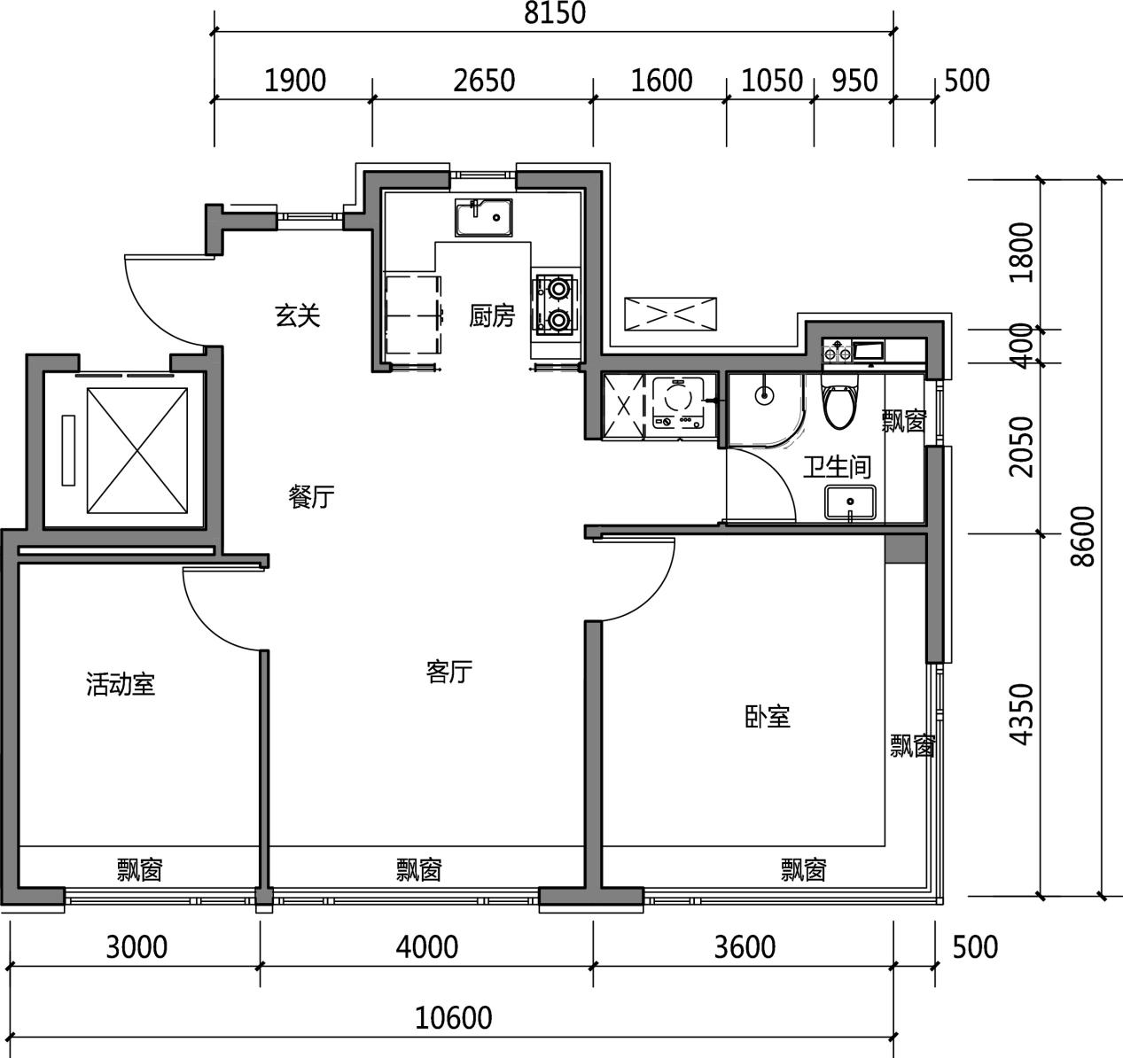
市场热度持续攀升,项目现已进入清盘收官倒计时。目前仅余少量建面约124㎡珍藏户型及部分建面约88㎡两居房源在售,错过不再。

极界124m²超配四居 演绎奢阔生活
京熙润府建面约124㎡全能超配四居,满足改善型家庭的多元需求。整体采用经典的"四叶草"布局,各个功能空间互不干扰,为每位家人提供独立私密的生活场域。

客餐厨一体化设计的LDK阔境,打造出家人互动无忧的社交空间,让聚会与烹饪完美融合。楼王尊席,约270°环幕观景视野,推窗即揽园林四大主题景观;南向约10.6米超大面宽,将天际美景尽收眼底。约50米超大楼间距,充分保障了室内的采光与静谧,让业主告别对视困扰,独享通透阳光与私密生活。

极悦88㎡爆款两居 舒享美好家
京熙润府建面约88㎡爆款两居以创新空间设计,为现代家庭带来超越期待的居住体验。
建面约88㎡(楼王尊席版),坐拥四大主题景观环绕,推窗即见花园谧境。全明舒阔的两居布局,配以LDK朗域宽厅设计,营造出开阔明亮的居住感受。南向双卧室布局,主卧配备270°宽幕飘窗,将四季风光巧妙引入室内。独立玄关空间的贴心设计,在保障居家隐私的同时,更彰显出精致生活的品位追求。


建面约88㎡(双卫两居版),双卫生间配置不仅避免了早晚高峰的使用冲突,更实现了公私分区的精细化设计。主卧独立卫浴保障主人私密,客卫方便接待访客,让生活从容有序。

京熙润府的热销佳绩,源于其对品质生活的深刻理解与精准把握。项目已进入收官进行时,珍稀席位逐日递减。目前,剩余少量约124㎡四居及建面约88㎡两居独版户型,把握置业良机,亲临售楼处了解更多珍藏户型详情,见证这座双冠热盘的非凡魅力。